1970’s Kitchen Gets New Life

 

LinArlKitchen24

 
 
Our recent clients have lived in their Arlington home for years and knew it was time for some updating. Not only was their original 1970’s galley kitchen visually dated, but also was less than functional – it’s doorway into the dining room got in the way of opening the refrigerator door, the narrow layout lacked space to host friends and family for get-togethers, and the entire room was poorly lit with one large fluorescent light in the middle of the ceiling. Sound familiar? Unfortunately, these are very common problems with traditional galley-style kitchens built in that era. Luckily, we were able to assist our clients with a fresh, modern design and breathe new life into their tired kitchen!
 
As you can see in the before photos below, the original kitchen felt very crowded. There was a small pass through over the sink, but it didn’t do much by means of opening the space. The narrow doorways, double oven and low-hanging fur down contributed to the crowded feel of the room and took up valuable storage and counter space. The mentioned fluorescent ceiling light created a dim setting and caused shadows over the workspaces – not ideal for cooking!
 

20150225_171440

 

20150225_171452

 

20150225_171514

 
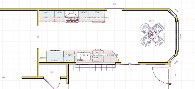
After discussing these aesthetic and structural issues with the clients, our designers got to work creating floor plans and renderings for the remodeled kitchen.
 

Lindsey_Floorplan

 

Lindsey_Rendering2

 

Lindsey_Rendering1

 

Lindsey_Rendering4

 

Lindsey_Rendering3

 

The design features a widened doorway into the dining room and a widened pass through into the living room. While these may not sound like big changes, they really opened up the space! The larger pass through even provided for a bar area in the living room: allowing guests and cooks to mingle without congesting the kitchen.
 

LinArlKitchen15

 

LinArlKitchen25

 
Removing the fur down and the double oven provided for increased cabinet and counter top space, along with a more modern look.
 

LinArlKitchen24

 
We built a custom cabinet around the new stainless steel fridge, complete with cookie sheet storage cabinets on top and a roll-out cabinet to the right.
 

LinArlKitchen13

 
We also installed a beautiful stainless steel gas stove, matching chimney vent hood, dishwasher, and microwave drawer.
 
The stainless steel appliances look great with the new drawer and cabinet pulls, granite counter tops, painted walls and cabinets, and subway tile backsplash!
 

LinArlKitchen07

 

LinArlKitchen03

 
The fluorescent ceiling light was replaced with strategically placed can lights and under cabinet lights to create a bright, shadow-less environment. Our talented interior designer, Stephanie, also helped our clients pick out the perfect light fixture to hang above their new dining set, which really compliments the new kitchen.
 
The finished remodel is beautiful, and our clients are thrilled to have a fresh new look in their ‘no-longer-70’s-style’ kitchen!
 
If you are among the many Tarrant County residents living in a 1970’s or 80’s home, we’d be happy to help you redesign and remodel your space for a modern, stylish new look! Contact us today to get started!
 
Warm Regards,
 
The Medford Remodeling Team
 

  • There are no suggestions because the search field is empty.
Latest Post