Fireplace Remodel Design Process
Fireplace Remodeling Design Process
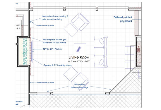
Design Package
To determine exactly how much your fireplace remodel will cost, a custom design package may be required. These designs give you a clear visual of the finished room and allow us to detail every aspect of the project, specifying materials, labor, cost, and timeline. Your package includes:
- Floor Plans & 3D Renderings of your fireplace layout
- Scope of Work Document with cost and timeline
- Budget Items Worksheet to outline allowances for selection items
Our custom design package ensures you understand precisely how your space will look and what the investment will be, before construction ever begins.
Design Fee*
The cost of a custom design package for a fireplace starts at $750. The design fee is payable when you sign the Design Agreement.
When you are ready to move forward with Medford Design-Build for the construction of your project, your design fee will be credited toward your project down payment.
Estimated Cost**
The cost to remodel a fireplace can vary significantly based on the size, the complexity of the layout, and the features you want to include. To provide you with an accurate cost to build your project, detailed plans must be developed through our custom Design Package process.
Costs of design packages may vary due to the complexity of the design.
*
Estimated Total Costs are ballpark estimates based on the average cost of similar projects. The exact cost of your specific project will be determined upon completion of your design package.
**
Fireplace remodels can be simple or extensive, depending on how much you want to change!
If you just want to refresh the façade or mantel, our small projects division can help without a full design package.
For bigger changes like rebuilding, relocating, converting to gas, or projects needing a permit, a design package is required (see above).
Not sure which fits your project? Contact us, we’re glad to help!
Service Areas
We provide quality luxury remodeling services for thousands of clients across Tarrant County, Hood County, Johnson County, and Ellis County.
- Arlington
- Dalworthington Gardens
- Kennedale
- Pantego
- Mansfield
- Fort Worth
- Colleyville
- Grapevine
- Hurst
- Euless
- Bedford
- North Richland Hills
- Southlake
- Keller
- Trophy Club
- Westlake
- Grand Prairie
- Burleson
- Midlothian
- Cleburne
