A High-Function Arlington, TX Office Remodel
What was once a cramped, high-traffic corner of this Arlington, TX home is now a show-stopping office that blends style and productivity. With custom cabinetry, brushed gold finishes, and a touch of floral charm, this space proves that a home office can be both beautiful and functional.

Before: Disconnected & Distracting
These homeowners are work-from-home executives with young kids, so having a quiet environment was essential to their daily routine.
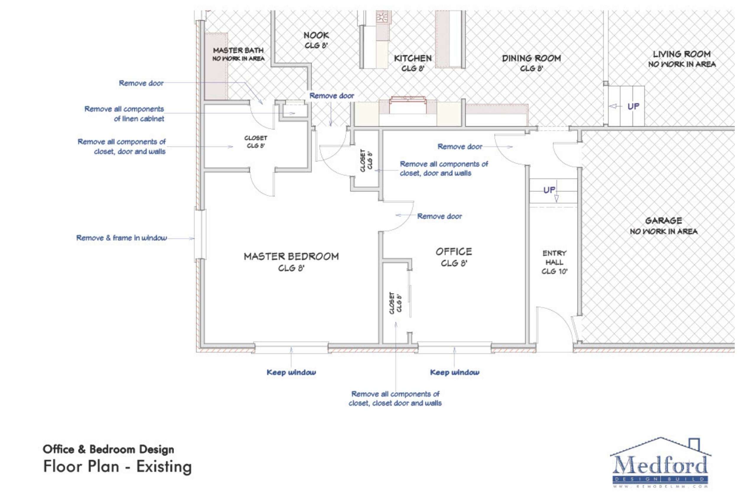
Originally, the office sat between the kitchen and the master suite, creating constant interruptions throughout the day. Even more challenging, the master bathroom is the only downstairs bathroom, which meant kids regularly passed through the office during meetings, conference calls, and video calls. What should have been a productive workspace became a high-traffic hall way.
Between noise, movement, and lack of privacy, the layout simply didn’t support a professional work-from-home lifestyle.


The Plan
Before any demolition began, we worked through our design package process to solve the problem on paper first. Through detailed floor plans, 3D renderings, and a clearly defined scope of work, the homeowners could see exactly how the layout would function long before construction started. The design showed a clear solution: re-route circulation through a new hallway and reallocate space to create a dedicated office zone separated from daily household traffic.


Bringing the New Layout to Life
This transformation involved strategic structural changes to make the office truly functional:
- Wall Removal & New Hallway: We removed the doorway connecting the office directly to the kitchen and reworked the flow, creating a hallway that connects the foyer, office, and master bedroom. This gave the space privacy and a clean circulation path.

- Closet Removal: The original closet was taken out to open up usable square footage. This made room for the custom-built cabinet wall, designed to maximize storage while keeping surfaces clear.

Design Highlights & Remodel Solutions
-
- Custom Cabinet Wall: Floor-to-ceiling built-ins offer plenty of storage while keeping the workspace organized.

- Brushed Gold Finishes: Hardware, fixtures, and accents add warmth and a subtle touch of luxury.

- Floral Wallpaper Accent: A soft, modern pattern gives the office personality without overpowering the room.

- Optimized Layout: Thoughtful planning created a private, distraction-free work zone.

The Result: A Transformed Workspace
With the traffic path redirected and privacy restored, the office now functions as a true work zone rather than a pass-through space. Meetings can happen without interruptions, and the family can move through the home without disrupting the workday.
Paired with custom cabinetry, brushed gold accents, and a soft floral wallpaper feature, the room balances professionalism with comfort, proving a highly functional workspace can still feel warm and inviting.

A Special Thanks To Our Team:
- Structural Design: Michael Medford, Jr.
- Aesthetic Design: Stephanie Milford
- Drafting and Renderings: Brandy Anderson
- Production Management: Dave Broadfield
- Project Management & Trim Carpentry: Neil Norris
- Plumbing: Express Master Plumbing
- Electrical: Marc Miller Electric
- Paint and Wallpaper: Phillip Painting Company
- Flooring: Hilton’s Flooring & Tile Showroom
- Countertops, Flooring, & Tile Fabrication: HRG Tile & Granite
- Ventilation: Southern Air Mechanical
- Final Photography: Dallas Real Estate Media
Design Selection Highlights:

Ready to Remodel Your Kitchen?
Curious how a home office remodel could work for your space? Contact Us Today to start planning your own functional andstylish workspace!
Browse More Projects for inspiration!
